Il est pour moi
Je veux visiter ce bienC'est presque ça, mais ...
On s'occupe de toutDescription du bien
ID de l'offre : 3000461
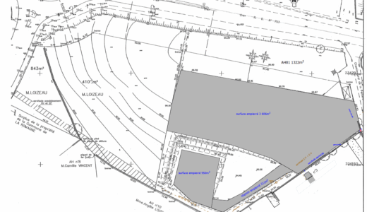
6 963 m² (parcelle n°0080) + 1 322m² (parcelle n°0081) avec bail emphytéotique cessible = 8 785 m²
En bordure de la D753 (10 000 véhicules/jour) à l’entrée de la Romagne.
En image



Caractéristiques techniques
Terrain
Surface disponible : 8785 m²
Parcelle maxi disponible : 6963 m2
Parcelle mini disponible : 1322 m2
Vocation : Industrielle, Services
Accès
- En bordure de la D753 (10 000 véhicules/jour) à l’entrée de la Romagne.